
Architectural drafting services, CAD drawing, and 3D support etc. for Colorado projects
Colorado's outdoor lifestyle economy and tech sector are driving a construction boom across Denver and the Front Range. High altitude, significant snow loads, and wildfire interface zone requirements add unique documentation complexity. Drafting Buddies provides CO contractors with complete drafting outsourcing architectural CAD drafting, permit & construction drawings, HVAC drafting, MEP, civil drafting, residential drafting, and 3D renderings.
Drafting Buddies supports contractors, architects, and engineers across Colorado with complete drafting outsourcing solutions tailored to these challenges. Our services include architectural CAD drafting, permit and construction drawings, HVAC drafting, MEP coordination, civil drafting, residential drafting, and detailed 3D renderings.
We focus on delivering practical, construction-ready drawings that reflect real-world site conditions and regulatory requirements. Each set is developed with clarity and precision, helping reduce delays during approvals and improving coordination during execution. With a structured workflow and consistent quality, Drafting Buddies provides reliable drafting support from early design stages through final documentation.
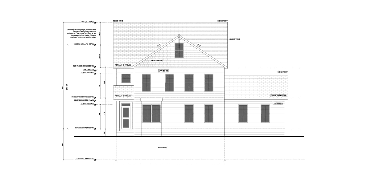
Our architectural drafting services in Colorado guide you through every stage of your project, from initial schematic design to complete construction documentation. We ensure all drawings adhere to your templates and standards, so they appear as if produced by your in-house team. With attention to detail and accuracy, our team helps streamline project workflows, reduce errors, and deliver high-quality, ready-to-use drawings that support architects, engineers, and contractors throughout the construction process.
We also help bridge the gap between design intent and construction reality by preparing coordination details, revision clouds, and shop drawing markups that align with your GC and trade partners.


Colorado residential work moves fast—especially renovations, additions, and remodeling projects. Our Residential Drafting Services are designed specifically for architects, contractors, and builders who need accurate, clear, and easy-to-follow plans. We create detailed drawings that comply with local building codes and are fully coordinated so that building departments, tradespeople, and construction teams can execute work without delays or confusion. By focusing on precision and clarity, our services help streamline the construction process, reduce errors, and ensure that every renovation or addition is completed efficiently and to the highest standard.
From initial space planning to final as-built drawing sets, we help you keep documentation current as the project evolves.
At Drafting Buddies, we provide expert 2D drafting services for architects, engineers, and contractors in Colorado. We use advanced tools for AutoCAD 2D Drawing, Permit Drawing, and Shop Drawing Services, ensuring adherence to your project and regulatory requirements. Our professional Redline Markups and PDF to CAD Conversion Services are built on quality review, consistency, and accuracy—so you get a reliable partner for faster workflows and fewer errors.


At Drafting Buddies, we offer expert 3D modeling services for architects, designers, and contractors in Colorado to create highly detailed and accurate visual models. Our specialized services cover interior design 3D modeling, construction 3D modeling, and comprehensive architectural 3D modeling services. We use advanced design 3D rendering, CAD modeling, 3D CAD, and complete 3D design solutions so you can visualize your project realistically before construction begins. Our team combines technical skill with creative vision to improve workflow, strengthen presentations, and ensure a clear understanding of the final design. Work with a reliable Colorado–based 3D modeling team committed to delivering visually accurate, practical, and high-quality solutions for every project.
Drafting Buddies delivers professional 3D rendering services in Colorado designed to bring architectural and interior design projects to life. Our team excels in architectural rendering services, 3D architectural rendering services, and 3D rendering services for interior design, creating realistic and immersive visuals that help clients and stakeholders understand the final outcome.
We provide precise interior design 3D rendering, 3D modeling and rendering, and advanced architectural visualization services, ensuring every element—from materials to lighting—is accurately represented. As a leading architectural rendering company in Colorado, we focus on delivering high-quality 3D architectural York, we focus on delivering high-quality 3D architectural visualization that improves design decision-making, enhances client presentations, and streamlines documentation planning.


Colorado building departments expect clean, complete, and coordinated sets. We help you prepare documentation that plan reviewers and field crews can follow without guesswork.
Our CAD design and drafting specialists combine technical skill with creativity to turn ideas into buildable designs that support both permit approval and smooth construction.
Walk-through renderings in Colorado are animated 3D visuals that allow architects, designers, and clients to experience a space virtually before construction begins. Unlike a single still image, a 3D architectural walkthrough provides a smooth, video-style tour, guiding viewers through rooms, corridors, lobbies, or entire buildings across Colorado projects. These virtual tours are an essential component of modern 3D rendering services and architectural visualization, helping design teams and clients understand spatial flow, scale, and intricate design details. By leveraging walk-through renderings in Colorado, stakeholders can make informed decisions, catch potential issues early, and communicate project vision clearly, ensuring that every residential, commercial, or interior design project is executed efficiently and accurately.
You get compelling, easy-to-share visuals that help secure approvals and buy-in before a single wall is built.


At Drafting Buddies, we provide expert CAD drafting services in Colorado, helping architects, engineers, and contractors produce precise and detailed technical drawings for projects across the city. Our team specializes in AutoCAD drafting services, AutoCAD 2D drawing, and comprehensive CAD designing using the latest CAD design software to ensure every plan is accurate and construction-ready.
We also deliver advanced CAD 3D modeling, 3D modeling & CAD, and professional AutoCAD drawing solutions that bring designs to life and improve project coordination. By offering outsourced CAD drafting services to firms throughout Colorado, we help streamline workflows, reduce errors, and meet tight deadlines without compromising quality.
With our expertise in CAD drawing programs and strict quality control, Drafting Buddies is a trusted Colorado–based partner for high-quality, reliable CAD documentation for residential, commercial, and industrial projects.
At Drafting Buddies, we provide professional architectural construction drawing services in Colorado, helping architects, builders, and contractors produce precise and reliable plans for every project. Our team specializes in creating detailed building drawings, architecture drawing building, and drawing building plans that accurately represent the design intent and construction requirements.
Using advanced tools like AutoCAD for building plans, we deliver high-quality architectural CAD drafting services that streamline workflows, reduce errors, and ensure compliance with local building codes. Serving clients across Colorado, Drafting Buddies combines technical expertise, industry knowledge, and rigorous quality checks to produce construction drawings that architects, engineers, and construction teams can trust for residential, commercial, and industrial projects.
With Drafting Buddies, you gain a reliable partner for all your architectural construction drawing needs in Colorado, ensuring every project moves forward with confidence and clarity.


At Drafting Buddies, we specialize in mechanical drafting services in Colorado, helping engineers, contractors, and architects with accurate technical drawings for mechanical systems. Our team excels in CAD mechanical drawing, AutoCAD mechanical drawing, and drafting technical drawings for fabrication, installation, and project planning. We deliver AutoCAD mechanical drafting, engineering drawing, and mechanical 2D drafting services that meet industry standards, streamline workflows, reduce errors, and improve communication. Drafting Buddies combines technical expertise, advanced software, and a rigorous quality review process.
For successful metal building construction in Colorado, precise steel shop drawing services are essential. These drawings provide accurate dimensions, materials, and connection details, helping structural steel fabricators create components that fit perfectly and meet design standards.
Our metal fabrication services cover a wide range of metal works, including beams, trusses, railings, and custom steel components. Professional planning and execution reduce errors, save time, and ensure compliance with local building codes. Partnering with expert structural steel fabricators guarantees high-quality metal works from concept to installation.
With detailed steel shop drawings and skilled fabrication, your project stays on schedule and meets the highest standards of quality and safety.

Denver| Colorado Springs| Aurora| Fort Collins| Boulder
Choosing the right drafting partner directly impacts your schedule, reputation, and profitability.

We understand that accurate drafting, clean CAD drawing files, and on-time shop drawing packages are what keep projects moving and change orders under control.

Our team regularly works on Colorado residential, commercial, and mixed-use projects, so we know the level of clarity and detail building departments expect.

You get the benefits of outsourcing drafting services—lower cost and flexible capacity—without sacrificing communication, standards, or quality.

Every drawing and model passes through documented QA checklists before delivery. Our goal is simple: files that your team can use on day one.

Need us a few hours a week, or want a dedicated drafting pod embedded in your workflow? We tailor the engagement so it fits how your office operates.
You Ask, We Draft