Our precision-driven 2D drafting services deliver accurate, dependable drawings that support seamless project execution from initial concept through final construction. We develop clear floor plans, elevations, sections, and technical layouts that minimize errors and improve coordination across architectural, structural, and engineering teams.
Using advanced 2D drafting software, we ensure consistent layering, precise dimensions, and controlled revisions so every drawing aligns with industry standards and is ready for approval or fabrication.
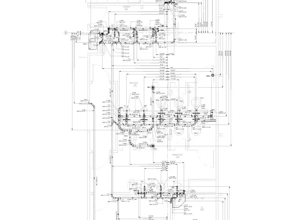
Our specialized mechanical 2D drafting services support engineers and manufacturers with detailed part drawings, assembly layouts, and fabrication-ready documentation that meet exact tolerances and technical requirements.
In addition, we provide efficient 2D to 3D CAD transformation, converting legacy drawings, PDFs, and hand sketches into accurate 3D models. This process improves visualization, supports clash detection, enhances design clarity, and helps clients reduce costly rework while making informed project decisions.

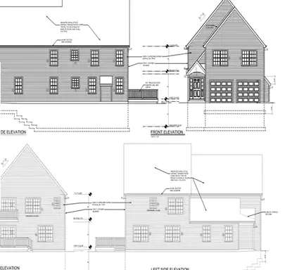
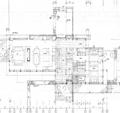
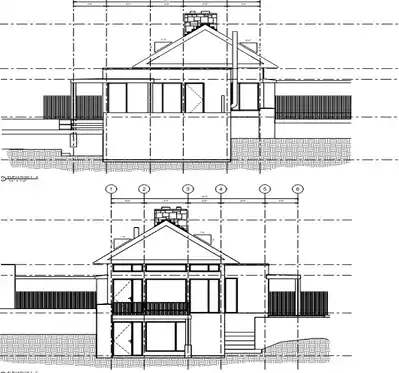
Our comprehensive approach to 2D drafting supports architects, engineers, contractors, and design professionals who need clear, accurate, and standards-compliant drawings for successful project delivery. We provide specialized architectural 2D drafting services that cover floor plans, elevations, sections, and detailed layouts, ensuring every drawing communicates design intent with precision. These drawings help streamline approvals, improve coordination among project stakeholders, and reduce costly errors during construction. By focusing on accuracy, scale consistency, and proper annotation, our architectural 2D drafting services become a reliable foundation for both residential and commercial developments.
We handle a wide range of 2D drafting projects across different industries, from conceptual design documentation to detailed construction drawings and renovation plans. Each project is executed with careful attention to dimensions, layers, and drafting standards so teams can easily interpret and implement the design. Our experience with diverse 2D drafting projects allows us to adapt to various project scopes, whether it is a single building layout, a multi-floor development, or a complex engineering plan that requires precise technical detailing.
In addition to core drafting work, we also offer additional 2D drafting services that enhance project documentation and flexibility. These include redline revisions, CAD conversions from PDF or hand sketches, as-built drawing updates, and detailed annotation support for construction and fabrication needs. Our additional 2D drafting services ensure that every stage of the design and construction workflow is supported with accurate, up-to-date drawings, helping professionals maintain clarity, save time, and deliver projects with confidence.
Professional 2D Drafting Services for Precise, Scalable Design Solutions

PDF to CAD conversion is a crucial process for industries that rely on CAD software for design and analysis. By converting PDF files into CAD compatible formats like DWG or DXF, businesses can unlock the full potential of CAD software and make accurate modifications to drawings.

Drafting refers to drawing technical plans or outlines that demonstrate how something will function. CAD Drafting is a way to form these plans with software instead of by hand, usually in either 2D or 3D models

Essentially the Permit Drawing must contain sufficient information to determine whether the proposed work confirms all applicable regulations, primarily concerned with life safety. They typically require a site plan, elevations, floor plan, mechanical drawing, plumbing, and HVAC. However, it is a minimal set of drawings, smaller and less detailed than construction drawings.

Shop drawings (also known as fabrication drawings) are detailed plans that translate design intent. They provide fabricators with the information necessary to manufacture, fabricate, assemble, and install all the component.

These drawings should illustrate any variations from the original construction drawings, including changes to specifications, dimensions, materials, and location. As-built drawings should include dates and detailed notes of any modifications. Changes to materials used (type, size, location, etc.).

Redline drawings are architectural drawings that have been printed, reviewed, and marked up with errors, changes, and revisions. The markups are typically done in red links to make them easier to find, hence the name Redline Drawings.
Our expert 2D Drafting Services provide accurate, detailed, and standards-compliant drawings that support smooth design and construction workflows. Whether you are managing residential, commercial, or industrial 2D drafting projects, clear documentation is essential for success.
Using advanced 2D drafting software, we prepare precise floor plans, elevations, sections, and technical layouts. Our architectural 2D drafting services ensure every drawing clearly communicates design intent while maintaining proper scale, layering, and annotation standards.
Our specialized Mechanical 2D Drafting Services are designed for engineers and manufacturers who require detailed part drawings, assembly layouts, and fabrication-ready documentation. These services help reduce production errors and improve technical accuracy across complex 2D drafting projects.
Professional 2D Drafting Services improve collaboration between architects, engineers, contractors, and project managers. Clear drawings reduce misunderstandings, speed up approvals, and minimize costly rework during construction.
In addition to core drafting, we offer additional 2D drafting services such as redline revisions, CAD conversions, as-built updates, and detailed annotation support. These additional 2D drafting services help maintain up-to-date documentation throughout every project phase.
Projects that require precise dimensions, such as floor plans, site layouts for permits, mechanical detailing, electrical schematics, and interior layouts, can benefit from 2D drawings. It's essential for both smaller-scale residential designs and larger-scale commercial or infrastructure projects.
2D drawings depict models with straight perspectives (top and front views), as well as shapes, lines, and annotations. 3D models, on the other hand, provide realistic and immersive representations of objects. 2D is great for measuring and documentation, while 3D is excellent for visualization and coordination.
Yes. Professional drafters can transform sketches or rough plans into clearly drawn 2D CAD drawings by utilizing programs like AutoCAD. These drawings can be used to design submissions or construction projects that serve a purpose.
We typically offer 2D documents in DWG, DXF, PDF, and occasionally DGN and SVG formats, depending on the client's requirements. Editable and print-ready source documents are also available on request by the customer.
Engineering and architecture, landscaping and manufacturing, electrical engineering, mechanical design, construction, and urban planning are just a few of the industries that rely heavily on 2D drafting.
The most commonly used software is AutoCAD, DraftSight, BricsCAD, TurboCAD, and Revit (for 2D views in BIM configurations). These software programs offer precision and standardized formats that align with the global drafting standard.
Yes. A majority of government entities and local authorities require 2D CAD designs to be submitted for permit applications, particularly for building permits, remodeling, and zoning approvals, as well as utility plan development.
Absolutely. 2D drawings are vital to renovation because they are precise both before and after the plans, aid in visualizing the use of the space, and help connect with permit firms and builders.
Yes. 2D landscape plans include designs of planting beds, irrigation systems for hardscape, and zones. That makes them vital for landscaping contractors and urban development.
Yes, we offer hand-drawn sketches that can be converted to CAD. This allows your rough sketches to be transformed into precise and dimensioned CAD files that can be used in professional settings.
Professional 2D drawing services ensure millimeter-level precision and adherence to industry standards. This accuracy can be maintained through calibration software, input references, and internal quality audits.
Yes. Revisions are an integral component of our 2D draftsmanship services, ensuring that the drawings you submit accurately reflect your changing needs or the feedback of reviewers or consultants. We can provide a flexible schedule for revisions to the project scope.